Hamburg
MASCHEN II

Architekt: Wilk-Salinas Gesellschaft von Architekten mbH, Berlin
Pläne, Schnitte: Johann Tipke, Architektenteam Tipke, Buchholz

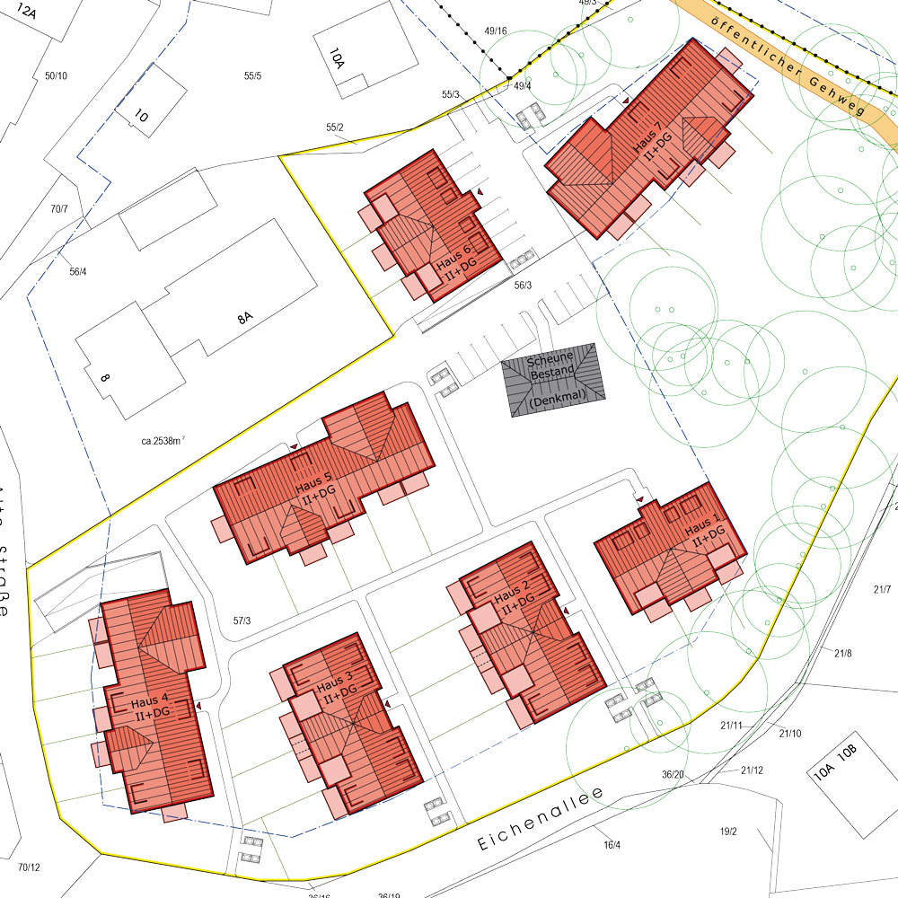
Im begehrten Hamburger Umland entsteht ein Wohn-Enseble mit 75 neuen Wohneinheiten. Für Caprate ist es nicht nur einfach "Wohnen im Grünen" mit Bezug zur Großstadt. Es ist eines der ersten strategischen Projekte in Deutschland, in dem der eigene CO2-neutrale Werkstoff (BTon) eingesetzt wird. Der Erfolg gibt uns Recht: es ist bereits verkauft.

ADRESSE
Alte Strasse / Eichenallee,
21220 Seevetal-Maschen
NUTZUNG
Wohnen
FERTIGSTELLUNG
vorauss. Q1/2024
FLÄCHE
ca. 8.500 m² BGF (oi)
VOLUMEN
ca. 32,2 Mio. €

 

© 2026 CAPRATE      DATENSCHUTZ      IMPRESSUM      DE EN
Einstellungen gespeichert
Datenschutzeinstellungen
You are using an outdated browser. The website may not be displayed correctly. Close